︿

乾式廢氣處理機

DRY SCRUBBER

本公司研發的乾式廢氣處理機的主要功能為處理生產線上所產生的廢氣,這些廢棄需經過乾式廢氣處理機去除有害成份後,即可安全的排出至大氣。目前需要用到此產品的領域有半導體廠、TFT面板、太陽能、LCD、電路板、化學製程、製藥及研究實驗室...等

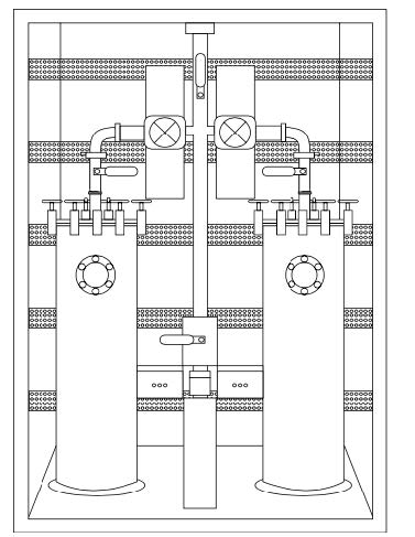
MAIN STRUCTURE

設備構成
1.填床槽

填床槽置放吸附劑,使毒性氣體被吸附,達到除害效果。

2.箱體外觀
3.箱體內部

台灣自西元1990年開始,半導體、IC、TFT 乃至今日的太陽能,工業發展迅速,多向專業已為世界第一。

每一座工廠都需要有特的氣體,如:NH3、C12、Bc13、SiH4、TEOS...等作為製成用氣,而且用量隨產能不斷增大;使用過程中產生的餘氣及廢氣經過Scrubber處理後,排至大氣或中央Scrubber。目前Gas Scrubber 大部份為進口品,費用十分昂貴,加上相關技術皆由歐美日等國掌握,成本相對居高不下。

本公司從事氣體供應、安裝以及建廠、維修20年。於2010年開始參加國科會及國立高雄應用科技大學化工研究 所為期4年的產學合作研究計畫。開發電子產業排放有毒氣體用吸附材料(II)編號:101-2622-E-151-018-CC3。於2012年,產品開發完成,測試成果卓越。本公司決定將成果發表。希望能夠提供客戶更價廉物美的選擇。

SPECIAL GAS & HOW IT WORKS

特殊氣體及除害原理

在半導體、光電面板、 LCD、太陽能、醫藥生技及化學品製造工廠或實驗室等場所的製程中用過的特殊化學品或特殊氣體需經過處理的廢氣有下列 :

PERFORMANCE

測試報告
兩種沸石(1X,2X),對H2S之去除率皆可達100%,進行到第四次效果依然顯著可達100%。兩種樣品去除率在100% 的時間經過實驗到5.6hr 後,依然是維持100%。